木の温度を感じる、やさしい平屋の家
ひょうごの木を生かし、ゆっくりとした時間が流れる平家が完成しました。
この住まいは、「暮らしやすさ」を計画した住まいです。段差の少ない動線や、必要な場所にだけ設けた造作収納など、日々の生活がすっと整う工夫を随所にちりばめています。
- 入口から見る
- 玄関
- 黒御影でシック
- 和風な趣
- 明るいリビングダイニング
- シンプルダイニング
- 落ち着いた間取り
- 明かりのつかいわけ
- 和のしつらえ
- 和室を使う
- 和室
- 床の間
- ダイニングキッチン
- 使い慣れた色合いで
- 珪藻土
- 簡潔な動線
- 寝室
- ウォークインクローク
- トイレ
- 仕事部屋のレトロなガラス
- シナベニア
- freestyle
- 落ち着く空間
- 見学会の風景
- 見学会の風景
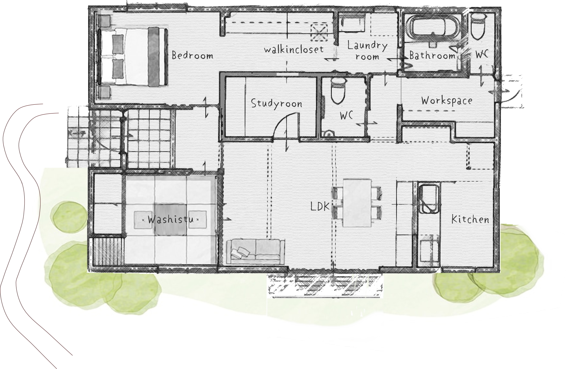
- 平面図
寝室からクローク、洗面脱衣、浴室へと一直線につながる動線は、朝の身支度から夜のリラックス時間まで、毎日の動きを無理なくサポートしてくれる配置です。
そこからトイレ、家事室、キッチン、リビングへと回遊できる“ひとまわりの動線”が、家の中心となるLDKと連係し、暮らし全体をスムーズにしてくれます。
家の中をぐるりと回れる四角い動線は、家事の負担を軽くし、ご家族の動きを自然に整えるためのもの。渋滞しにくく、動きやすい安心感が魅力です。
LDKにはしっかり面積をとり、くつろぎ・食事・ちょっとした仕事もひとつの空間で心地よく完結できるよう計画しました。
隣接する和室は、客室や必要に応じてLDKとつながりオールマイティーに使え、大広間大変身。
家事室や書斎、収納の配置も、“動きやすさ”を軸に無駄を省くことで、ゆっくり暮らすための余白を生み出しています。
平家ならではの安心感と、平屋だからこそ、ていねいな導線計画。ひょうごの木が暮らしに寄り添う、心地よい住まいになったかと思います。
↓↓↓
木の家づくりをはじめよう
木の家づくりのプロフェッショナルに相談ができます。
お困りの事ありませんか?
・土地探し
・資金計画
・ライフプラン
・プランニング
・木の家コンセプト
・実際の木の家の暮らしを見学
・製材所で兵庫県産木材ができるところを見学
等など、
家づくりのお困り事を解決しています。
家づくりの第一歩を始めましょう!
株式会社宮下では土地販売のマッチングサービスもしています。売りたい土地、買いたい土地がある場合は一度、ご連絡ください。また、現在、加東市南山で(中国道ひょうご東条インター近く)分譲販売をしております。現在の販売情報は下記になります。(2023年6月9日更新)詳しくはコチラ↓↓
各種SNSでも情報発信しています。レビューやコメントお待ちしています!
LINE@はお問い合わせにも使えて便利です。
公式ブログも更新中◀◀
SNSシェアはこちら↓↓






























